Skip to content
Arquitectos GM
  • Home
  • Nosotros
  • Obras
    • Nuevas
    • Reformas
  • Servicios
  • Contacto
Arquitectos GM

PH Cabrero

M² Cubiertos

M² Descubiertos

M² Semi-Cubiertos

Año:

2016

Ubicación:

Lanús

Detalle del proyecto:

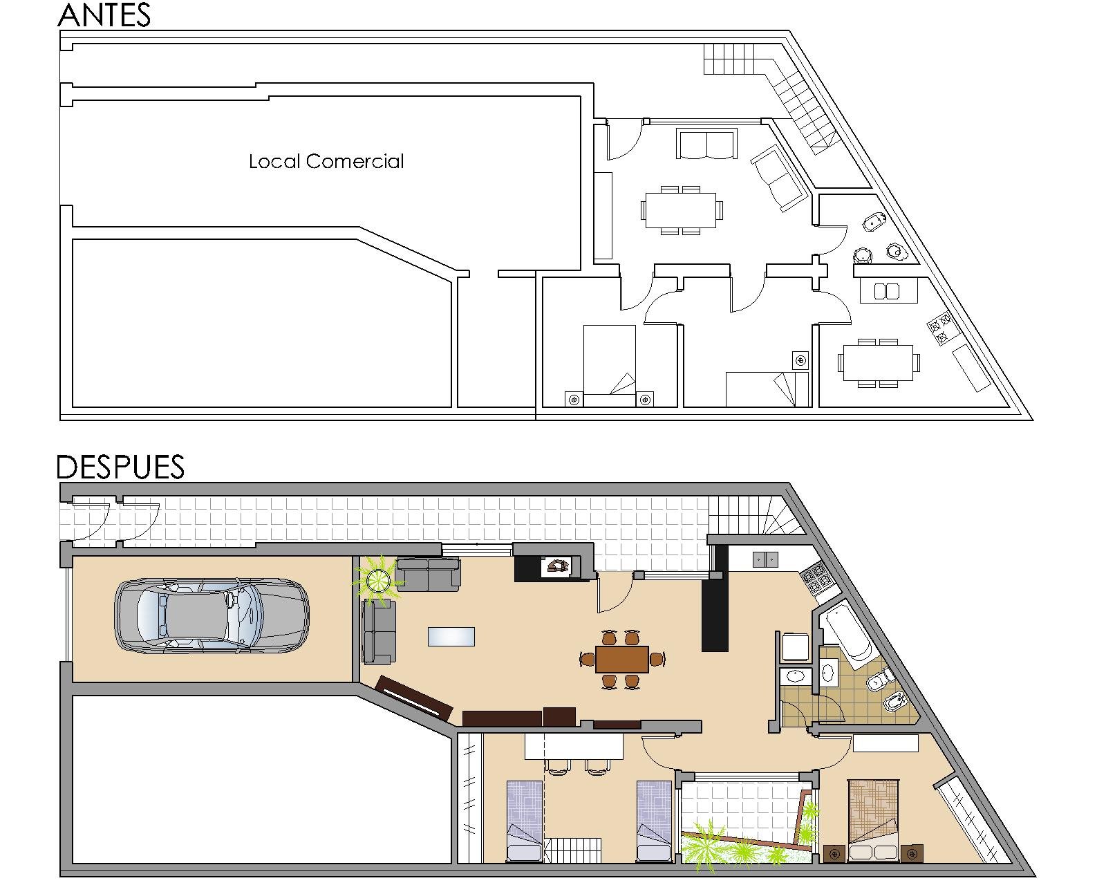
Se trata de un departamento tipo casa que se encontraba en un estado total de abandono.

La distribución original no permitía la ventilación e iluminación natural de casi ninguno de sus ambientes, y al ser interno era muy oscuro.

La decisión fue crear un patio interno al que ventilen los dormitorios y sea a su vez el 'corazón' de la casa. Los colores cálidos, la madera y la vegetación intentan crear un clima de calidez y armonía.

Además el patio permitió generar ventilación cruzada, con lo cual el living comedor es muy fresco en verano, y casi no requiere refrigeración.

Al mismo tiempo, para ganar mayor iluminación natural, se diseño una raja horizontal en el living comedor, en el punto de transición del techo existente con el de la nueva ampliación.

Por otro lado, se avanzó bajo la escalera que lleva a la terraza, aprovechando ese espacio para ubicar la cocina, integrada al comedor, obteniendo un espacio fluido.

En la terraza se demolió un galpón (donde ahora se encuentra el patio interno), y por otro lado se construyó un pequeño quincho, de gran uso para la familia.

Arquitectos GM © Todos los derechos reservados. Diseño por ADStudio.

Page load link
  • Home
  • Nosotros
  • Servicios
Nuestras Obras
  • Nuevas
  • Reformas
Contactanos!

Nos caracterizamos por brindar atención personalizada, llevando a cabo los proyectos con dedicación y compromiso, cumpliendo con las expectativas del cliente.

Go to Top